When you walk through the door of The Perfumery Cottage you will find yourself in a delightful, characterful accommodation dating back 300 years with a unique and quaint layout. Considerable care has been taken to ensure that the work has been carried out in a sympathetic way that harmonises with the historical features of the property, and at the same time has produced an extremely comfortable and cosy, modern cottage, which has style and flair. Fibre broadband and a Sonos sound system is in all rooms. Both of the luxurious bedrooms have top quality Vi-Spring beds (one is a Super-King, the other a King), en-suite bathrooms with walk-in powerful showers, mood lighting and relaxing surround sound. The Perfumery Cottage provides a carefully curated blend of comfort and convenience with all the modern amenities you can think of (and more) designed to make your visit absolutely perfect.
The cosy, beamed living room has an approved log burning stove and a 55" Smart TV with full package subscriptions and surround sound. The kitchen is spacious, well equipped and includes a separate utility room for your laundry and boots.
Outside you will find your own private south facing patio and garden together with Hot Tub with subtle mood lighting, and a BBQ. There’s parking for two cars, providing convenience and added-value which is much sought after in Bourton-on-the-Water, plus free EV charging.
The Perfumery Cottage was the former home of John Stephen, the master perfumer at Cotswold Perfumery who is passionate about perfume and also about sustainability - providing the ethos behind this admirable renovation project. In John’s words - ‘I would like everyone to thoroughly enjoy their stay at The Perfumery Cottage and relax in the knowledge that they are also supporting sustainability.’
The Perfumery Cottage’s glowing Green credentials include:
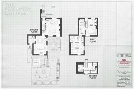
Features
- Free EV charging
- Double and Secondary Glazing
- Underfloor heating
- Defra Exempt and Ecodesign 2022 accredited highly efficient log-burner
The Perfumery Cottage is suitable for adults only. Please note that the property has steep stairs which may be awkward for anyone with mobility issues, and some low beams which add to the charm, but guests over six feet tall will need to be prepared to duck when passing under them.